Life BuildingMadrid, Espanya
Disseny per un concurs de Aedas Home, es tracta d'un espai flexible que alberga una zona d'oficina i una zona d'habitatge de mostra. Està realitzat amb elements modulars i transportables que es poden adaptar a qualsevol ubicació.
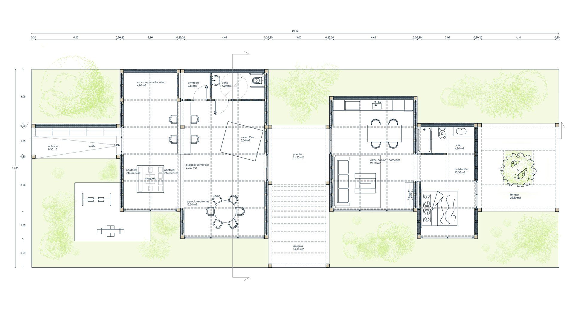
El showroom és una estructura modular que està dissenyada per a ser fàcilment desmuntada i adaptada a diferents llocs de construcció. La sala d'exhibició inclou una àrea d'oficina per al personal de vendes i un pis de mostra que els compradors poden visitar per a tenir una idea del disseny i dels acabats.
L'edifici està fet de fusta, un material sostenible i ecològic que proporciona un ambient càlid i acollidor. L'ús de fusta també permet un procés de construcció més eficient i ràpid, ja que és un material relativament lleuger i fàcil per a treballar.
La zona d'oficines del showroom està dissenyada per a proporcionar un espai professional i funcional per a reunir-se amb els compradors potencials i resoldre qualsevol dubte que puguin tenir. L'àrea de l'oficina inclou un taulell de recepció, seients còmodes i una àrea d'exhibició per a fullets i altres materials promocionals.
El pis pilot, d'altra banda, està dissenyat per a donar als compradors potencials una idea del disseny i dels acabats de la promoció d'habitatges. El pis inclou una sala d'estar, cuina, dormitori i bany, mostrant les diferents característiques dels habitatges
El showroom està dissenyat per a ser transportat i assemblat fàcilment en diferents llocs de construcció, la qual cosa permet al promotor d'exhibir els seus apartaments en diversos llocs. En general, el showroom és una solució rendible i eficient per a promocions d'habitatges, proporcionant als compradors potencials una idea clara dels habitatges.
Equip: Iulia Miron, Mercedes Vera, Lluís Juan Segura






