Life BuildingMadrid, España
Diseño para concurso de AEDAS Home, se trata de un espacio flexible que alberga una zona de oficina y una zona de vivienda de muestra. Está realizado con elementos modulares y transportables que se pueden adaptar a cualquier ubicación.
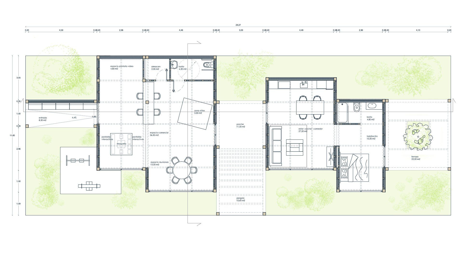
El showroom es una estructura modular que está diseñada para ser fácilmente desmontada y adaptada a diferentes sitios de construcción. La sala de exhibición incluye un área de oficina para el personal de ventas y un piso de muestra que los compradores pueden visitar para tener una idea del diseño y de los acabados.
El edificio está hecho de madera, un material sostenible y ecológico que proporciona un ambiente cálido y acogedor. El uso de madera también permite un proceso de construcción más eficiente y rápido, ya que es un material relativamente liviano y fácil para trabajar.
La zona de oficinas del showroom está diseñada para proporcionar un espacio profesional y funcional para reunirse con los compradores potenciales y resolver cualquier duda que puedan tener. El área de la oficina incluye un mostrador de recepción, asientos cómodos y un área de exhibición para folletos y otros materiales promocionales.
El piso piloto, por otro lado, está diseñado para dar a los compradores potenciales una idea del diseño y de los acabados de la promoción de viviendas. El piso incluye una sala de estar, cocina, dormitorio y baño, mostrando las diferentes características de las viviendas
El showroom está diseñado para ser transportado y ensamblado fácilmente en diferentes sitios de construcción, lo que permite al promotor de exhibir sus apartamentos en varios lugares. En general, el showroom es una solución rentable y eficiente para promociones de viviendas, proporcionando a los compradores potenciales una idea clara de las viviendas.
Equipo: Iulia Miron, Mercedes Vera, Lluis Juan Segura






